Проект 25563
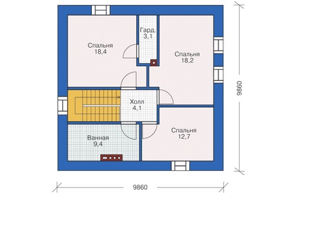
Площадь - общая: | 129.30м2 | |
Площадь - жилая: | 70.10м2 | |
Габаритные размеры: | 9.86 х 9.86 | |
Кол-во комнат: | 4 | |
Количество этажей: | 1 этаж + мансарда | |
Фундамент: | монолитный ж/б | |
Материал стен: | газобетонный блок | |
Материал перекрытий: | монолитные ж/б | |
Материал кровли: | битумная черепица | |
Отделка фасада: | лицевой кирпич | |
Комплектация проекта: | АР, КР, ВК, ОВ, ЭО | |
Стоимость проекта: | 000 грн. |
Смотрите также
Строительство дома
Дом-«улей» и дом-«летающая тарелка»
Долговечный, энергоэффективный, комфортный для жизни, вместе с тем с необычной архитектурой фасадов, самобытный – именно такой дом можно построить, применяя инновационные технологичные материалы.
Проект и согласование
Услуги по приобретению права собственности или пользования (аренды) земельным участком
Регистрация права собственности и права пользования на земельные участки - это официальное подтверждение таких юридических фактов, как возникновение и прекращение права, а также переход прав.
Вынос в натуру границ участка
Для точного определения координат используются тахеометры и спутниковая навигация.
Инженерия
Как выбрать кондиционер для разных помещений?
Сложность решения также сводится к огромному ассортименту предложений. С одной стороны это очень хорошо, а с другой – просто сбивает с толку покупателя. В таких случаях, чтобы купить кондиционер удобно использовать многофункциональный сервис поиска товаров в интернет-магазинах E-Katalog, где...
Как сделать поверхностный водоотвод
Поверхностный водоотвод легко можно обустроить своими руками. О том, как это делать, и что следует использовать, далее.
Комментарии
Оставить комментарийВы не зарегистрированные на сайте. Авторизуйтесь или зарегистрируйтесь пожалуйста.